EPA approves construction permit for Yoctangee Park project

Published on October 31, 2025 at 10:40 AM

Construction to begin on crucial roadway improvements, ensuring environmental protection during park revitalization

 

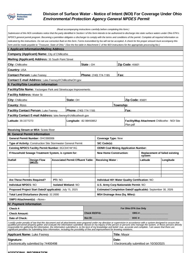
CHILLICOTHE, Ohio — The city of Chillicothe has received its Construction Site Stormwater General Permit from the Ohio Environmental Protection Agency, a key approval allowing streetscape construction to begin in Yoctangee Park.

The permit enables the city to proceed with planned roadway improvements, part of a larger investment in the park and surrounding Riverside District through the Appalachian Community Grant Program.

The permit mandates adherence to a Stormwater Pollution Prevention Plan, including best management practices to prevent sediment and pollution from impacting local waterways during construction.

Add comment

Comments

There are no comments yet.